|
1.7.76. Требования защиты при косвенном прикосновении распространяются на:
- 1) корпуса электрических машин, трансформаторов, аппаратов, светильников и т. п.;
- 2) приводы электрических аппаратов;
-
- 3) каркасы распределительных щитов, щитов управления, щитков и шкафов, а также съемных или открывающихся частей, если на последних установлено электрооборудование напряжением выше 50 В переменного или 120 В постоянного тока (в случаях, предусмотренных соответствующими главами ПУЭ — выше 25 В переменного или 60 В постоянного тока);
- 4) металлические конструкции распределительных устройств, кабельные конструкции, кабельные муфты, оболочки и броню контрольных и силовых кабелей, оболочки проводов, рукава и трубы электропроводки, оболочки и опорные конструкции шинопроводов (токопроводов), лотки, короба, струны, тросы и полосы, на которых укреплены кабели и провода (кроме струн, тросов и полос, по которым проложены кабели с зануленной или заземленной металлической оболочкой или броней), а также другие металлические конструкции, на которых устанавливается электрооборудование;
- 5) металлические оболочки и броню контрольных и силовых кабелей и проводов на напряжения, не превышающие указанные в 1.7.53, проложенные на общих металлических конструкциях, в том числе в общих трубах, коробах, лотках и т. п., с кабелями и проводами на более высокие напряжения;
- 6) металлические корпуса передвижных и переносных электроприемников;
- 7) электрооборудование, установленное на движущихся частях станков, машин и механизмов.
При применении в качестве защитной меры автоматического отключения питания указанные открытые проводящие части должны быть присоединены к глухозаземленной нейтрали источника питания в системе TN и заземлены в системах IT и ТТ.
1.7.77. Не требуется преднамеренно присоединять к нейтрали источника в системе TN и заземлять в системах IT и ТТ:
1) корпуса электрооборудования и аппаратов, установленных на металлических основаниях: конструкциях, распределительных устройствах, щитах, шкафах, станинах станков, машин и механизмов, присоединенных к нейтрали источника питания или заземленных, при обеспечении надежного электрического контакта этих корпусов с основаниями;
2) конструкции, перечисленные в 1.7.76, при обеспечении надежного электрического контакта между этими конструкциями и установленным на них электрооборудованием, присоединенным к защитному проводнику;
3) съемные или открывающиеся части металлических каркасов камер распределительных устройств, шкафов, ограждений и т. п., если на съемных (открывающихся) частях не установлено электрооборудование или если напряжение установленного электрооборудования не превышает значений, указанных в 1.7.53;
4) арматуру изоляторов воздушных линий электропередачи и присоединяемые к ней крепежные детали;
5) открытые проводящие части электрооборудования с двойной изоляцией;
6) металлические скобы, закрепы, отрезки труб механической защиты кабелей в местах их прохода через стены и перекрытия и другие подобные детали электропроводок площадью до 100 см2, в том числе протяжные и ответвительные коробки скрытых электропроводок.
1.7.78. При выполнении автоматического отключения питания в электроустановках напряжением до 1 кВ все открытые проводящие части должны быть присоединены к глухозаземленной нейтрали источника питания, если применена система TN, и заземлены, если применены системы IT или ТТ. При этом характеристики защитных аппаратов и параметры защитных проводников должны быть согласованы, чтобы обеспечивалось нормированное время отключения поврежденной цепи защитно-коммутационным аппаратом в соответствии с номинальным фазным напряжением питающей сети.
В электроустановках, в которых в качестве защитной меры применено автоматическое отключение питания, должно быть выполнено уравнивание потенциалов.
Для автоматического отключения питания могут быть применены защитно-коммутационные аппараты, реагирующие на сверхтоки или на дифференциальный ток.
1.7.79. В системе TN время автоматического отключения питания не должно превышать значений, указанных в табл. 1.7.1.
Таблица 1.7.1
Наибольшее допустимое время защитного автоматического
отключения для системы TN
| Номинальное фазное напряжение U
0, В |
Время отключения, с |
| 127 |
0,8 |
| 220 |
0,4 |
| 380 |
0,2 |
| Более 380 |
0,1 |
Приведенные значения времени отключения считаются достаточными для обеспечения электробезопасности, в том числе в групповых цепях, питающих передвижные и переносные электроприемники и ручной электроинструмент класса 1.
В цепях, питающих распределительные, групповые, этажные и др. щиты и щитки, время отключения не должно превышать 5 с.
Допускаются значения времени отключения более указанных в табл. 1.7.1, но не более 5 с в цепях, питающих только стационарные электроприемники от распределительных щитов или щитков при выполнении одного из следующих условий:
1) полное сопротивление, защитного проводника между главной заземляющей шиной и распределительным щитом или щитком не превышает значения, Ом:
где Z
ц- полное сопротивление цепи «фаза-нуль», Ом;
U
0- номинальное фазное напряжение цепи, В;
50 — падение напряжения на участке защитного проводника между главной заземляющей шиной и распределительным щитом или щитком, В;
2) к шине РЕ распределительного щита или щитка присоединена дополнительная система уравнивания потенциалов, охватывающая те же сторонние проводящие части, что и основная система уравнивания потенциалов.
Допускается применение УЗО, реагирующих на дифференциальный ток.
1.7.80. Не допускается применять УЗО, реагирующие на дифференциальный ток, в четырехпроводных трехфазных цепях (система TN-C). В случае необходимости применения УЗО для защиты отдельных электроприемников, получающих питание от системы TN-C, защитный РЕ-проводник электроприемника должен быть подключен к PEN-проводнику цепи, питающей электроприемник, до защитно-коммутационного аппарата.
1.7.81. В системе IT время автоматического отключения питания при двойном замыкании на открытые проводящие части должно соответствовать табл. 1.7.2.
Таблица 1.7.2
Наибольшее допустимое время защитного автоматического
отключения для системы IT
| Номинальное фазное напряжение U
0, В |
Время отключения, с |
| 127 |
0,8 |
| 220 |
0,4 |
| 380 |
0,2 |
| Более 660 |
0,1 |
1.7.82. Основная система уравнивания потенциалов в электроустановках до 1 кВ должна соединять между собой следующие проводящие части (рис. 1.7.7):
1) нулевой защитный РЕ- или РЕN-проводник питающей линии в системе TN;
2) заземляющий проводник, присоединенный к заземляющему устройству электроустановки, в системах IT и ТТ;
3) заземляющий проводник, присоединенный к заземлителю повторного заземления на вводе в здание (если есть заземлитель);
4) металлические трубы коммуникаций, входящих в здание: горячего и холодного водоснабжения, канализации, отопления, газоснабжения и т.п.
Если трубопровод газоснабжения имеет изолирующую вставку на вводе в здание, к основной системе уравнивания потенциалов присоединяется только та часть трубопровода, которая находится относительно изолирующей вставки со стороны здания;
5) металлические части каркаса здания;
6) металлические части централизованных систем вентиляции и кондиционирования. При наличии децентрализованных систем вентиляции и кондиционирования металлические воздуховоды следует присоединять к шине РЕ щитов питания вентиляторов и кондиционеров;
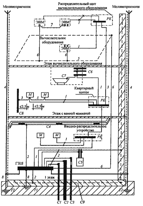
Рис. 1.7.7. Система уравнивания потенциалов в здании:
М — открытая проводящая часть; С1 — металлические трубы водопровода, входящие в здание; С2 — металлические трубы канализации, входящие в здание; С3 — металлические трубы газоснабжения с изолирующей вставкой на вводе, входящие в здание; С4 — воздуховоды вентиляции и кондиционирования; С5 — система отопления; С6 — металлические водопроводные трубы в ванной комнате; С7 — металлическая ванна; С8 — сторонняя проводящая часть в пределах досягаемости от открытых проводящих частей; С9 — арматура железобетонных конструкций; ГЗШ — главная заземляющая шина; Т1 — естественный заземлитель; Т2 — заземлитель молниезащиты (если имеется); 1 — нулевой защитный проводник; 2 — проводник основной системы уравнивания потенциалов; 3 — проводник дополнительной системы уравнивания потенциалов; 4 — токоотвод системы молниезащиты; 5 — контур (магистраль) рабочего заземления в помещении информационного вычислительного оборудования; 6 — проводник рабочего (функционального) заземления; 7 — проводник уравнивания потенциалов в системе рабочего (функционального) заземления; 8 — заземляющий проводник
7) заземляющее устройство системы молниезащиты 2-й и 3-й категорий;
8) заземляющий проводник функционального (рабочего) заземления, если такое имеется и отсутствуют ограничения на присоединение сети рабочего заземления к заземляющему устройству защитного заземления;
9) металлические оболочки телекоммуникационных кабелей.
Проводящие части, входящие в здание извне, должны быть соединены как можно ближе к точке их ввода в здание.
Для соединения с основной системой уравнивания потенциалов все указанные части должны быть присоединены к главной заземляющей шине (1.7.119-1.7.120) при помощи проводников системы уравнивания потенциалов.
1.7.83. Система дополнительного уравнивания потенциалов должна соединять между собой все одновременно доступные прикосновению открытые проводящие части стационарного электрооборудования и сторонние проводящие части, включая доступные прикосновению металлические части строительных конструкций здания, а также нулевые защитные проводники в системе TN и защитные заземляющие проводники в системах IT и ТТ, включая защитные проводники штепсельных розеток.
Для уравнивания потенциалов могут быть использованы специально предусмотренные проводники либо открытые и сторонние проводящие части, если они удовлетворяют требованиям 1.7.122 к защитным проводникам в отношении проводимости и непрерывности электрической цепи.
1.7.84. Защита при помощи двойной или усиленной изоляции может быть обеспечена применением электрооборудования класса II или заключением электрооборудования, имеющего только основную изоляцию токоведущих частей, в изолирующую оболочку.
Проводящие части оборудования с двойной изоляцией не должны быть присоединены к защитному проводнику и к системе уравнивания потенциалов.
1.7.85. Защитное электрическое разделение цепей следует применять, как правило, для одной цепи.
Наибольшее рабочее напряжение отделяемой цепи не должно превышать 500 В.
Питание отделяемой цепи должно быть выполнено от разделительного трансформатора, соответствующего ГОСТ 30030 «Трансформаторы разделительные и безопасные разделительные трансформаторы», или от другого источника, обеспечивающего равноценную степень безопасности.
Токоведущие части цепи, питающейся от разделительного трансформатора, не должны иметь соединений с заземленными частями и защитными проводниками других цепей.
Проводники цепей, питающихся от разделительного трансформатора, рекомендуется прокладывать отдельно от других цепей. Если это невозможно, то для таких цепей необходимо использовать кабели без металлической оболочки, брони, экрана или изолированные провода, проложенные в изоляционных трубах, коробах и каналах при условии, что номинальное напряжение этих кабелей и проводов соответствует наибольшему напряжению совместно проложенных цепей, а каждая цепь защищена от сверхтоков.
Если от разделительного трансформатора питается только один электроприемник, то его открытые проводящие части не должны быть присоединены ни к защитному проводнику, ни к открытым проводящим частям других цепей.
Допускается питание нескольких электроприемников от одного разделительного трансформатора при одновременном выполнении следующих условий:
1) открытые проводящие части отделяемой цепи не должны иметь электрической связи с металлическим корпусом источника питания;
2) открытые проводящие части отделяемой цепи должны быть соединены между собой изолированными незаземленными проводниками местной системы уравнивания потенциалов, не имеющей соединений с защитными проводниками и открытыми проводящими частями других цепей;
3) все штепсельные розетки должны иметь защитный контакт, присоединенный к местной незаземленной системе уравнивания потенциалов;
4) все гибкие кабели, за исключением питающих оборудование класса II, должны иметь защитный проводник, применяемый в качестве проводника уравнивания потенциалов;
5) время отключения устройством защиты при двухфазном замыкании на открытые проводящие части не должно превышать время, указанное в табл. 1.7.2.
1.7.86. Изолирующие (непроводящие) помещения, зоны и площадки могут быть применены в электроустановках напряжением до 1 кВ, когда требования к автоматическому отключению питания не могут быть выполнены, а применение других защитных мер невозможно либо нецелесообразно.
Сопротивление относительно локальной земли изолирующего пола и стен таких помещений, зон и площадок в любой точке должно быть не менее:
50 кОм при номинальном напряжении электроустановки до 500 В включительно, измеренное мегаомметром на напряжение 500 В;
100 кОм при номинальном напряжении электроустановки более 500 В, измеренное мегаомметром на напряжение 1000 В.
Если сопротивление в какой-либо точке меньше указанных, такие помещения, зоны, площадки не должны рассматриваться в качестве меры защиты от поражения электрическим током.
Для изолирующих (непроводящих) помещений, зон, площадок допускается использование электрооборудования класса 0 при соблюдении, по крайней мере, одного из трех следующих условий:
1) открытые проводящие части удалены одна от другой и от сторонних проводящих частей не менее чем на 2 м. Допускается уменьшение этого расстояния вне зоны досягаемости до 1,25 м;
2) открытые проводящие части отделены от сторонних проводящих частей барьерами из изоляционного материала. При этом расстояния, не менее указанных в пп. 1, должны быть обеспечены с одной стороны барьера;
3) сторонние проводящие части покрыты изоляцией, выдерживающей испытательное напряжение не менее 2 кВ в течение 1 мин.
В изолирующих помещениях (зонах) не должен предусматриваться защитный проводник.
Должны быть предусмотрены меры против заноса потенциала на сторонние проводящие части помещения извне.
Пол и стены таких помещений не должны подвергаться воздействию влаги.
1.7.87. При выполнении мер защиты в электроустановках напряжением до 1 кВ классы применяемого электрооборудования по способу защиты человека от поражения электрическим током по ГОСТ 12.2.007.0 «ССБТ. Изделия электротехнические. Общие требования безопасности» следует принимать в соответствии с табл. 1.7.3.
Таблица 1.7.3
Применение электрооборудования в электроустановках напряжением до 1 кВ
| Класс
по ГОСТ
12.2.007.0
Р МЭК536 |
Маркировка |
Назначение защиты |
Условия применения электрооборудования в электроустановке |
| Класс 0 |
- |
При косвенном прикосновении |
1. Применение в непроводящих помещениях.
2. Питание от вторичной обмотки разделительного трансформатора только одного электроприемника
|
| Класс I |
Защитный зажим-знак или буквы РЕ, или желто-зеленые полосы |
При косвенном прикосновении |
Присоединение заземляющего зажима электрооборудования к защитному проводнику электроустановки |
| Класс II |
Знак  |
При косвенном прикосновении |
Независимо от мер защиты, принятых в электроустановке |
| Класс III |
Знак |
От прямого и косвенного прикосновений |
Питание от безопасного разделительного трансформатора |
|